Открыть меню

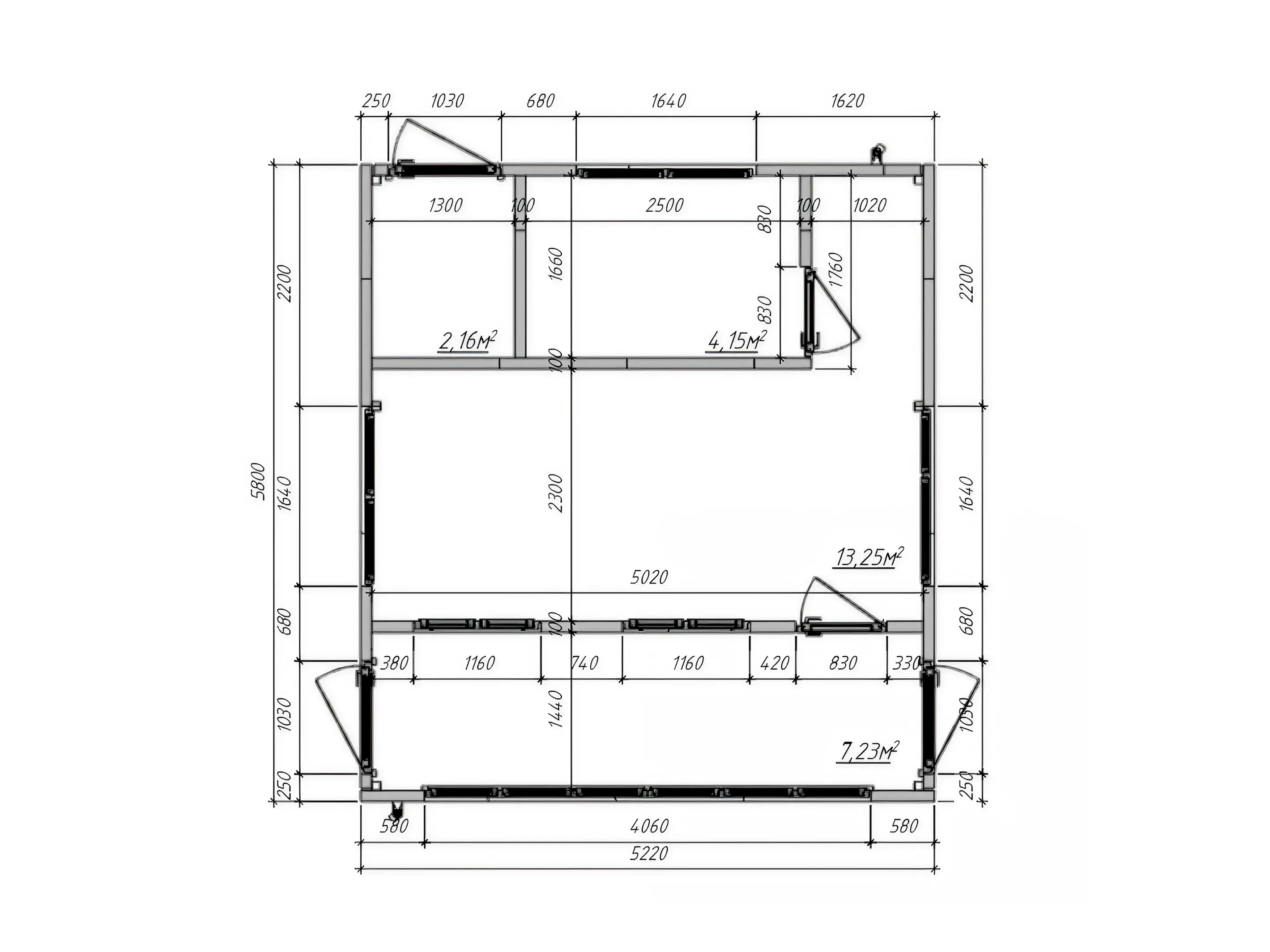
КПП 5,8x5,2 метра

Предназначено для обустройства быта сотрудников охраны предприятия (контрольно-пропускной пункт).

КПП

Характеристики гаража

Длина гаража

5,8 метра

Ширина гаража

5,2 метра

Высота гаража

3,1 метра

Толщина стен

100 мм

Толщина кровли

120 мм

Тип наполнителя

Пенополистирол

Описание

КПП модульного типа 5,8×5,2

Контрольно-пропускной пункт – это сборно-разборное мобильное здание, предназначенное для комфортного обустройства рабочих мест сотрудников охраны.

Основные характеристики модульного здания:

  • Каркас – сварной жесткий, выполненный из профилей разного сечения с антикоррозийной защитой.
  • Стены и перегородки – трехслойные сэндвич-панели с утеплением пенополистиролом 100 мм, наружные панели серые, внутренние белые.
  • Кровля – односкатная, с сэндвич-панелями толщиной 120 мм.
  • Пол – утепленная конструкция с сэндвич-панелью 80 мм, ЦСП 20 мм, линолеум и плитка.
  • Остекление – ПВХ блок с мультистеклом 32 мм, профиль Brusbox 60-3.
  • Двери – одностворчатые ПВХ с алюминиевым порогом, стеклопакеты 24 мм, доводчики и ключи-барашки.

Купить сборное здание можно в компании Модульные технологии!

Купите данную модель у нас, чтобы создать комфортное и безопасное рабочее место, готовое к эксплуатации сразу после установки.

Понравился проект?

Заполните форму и наш менеджер свяжется с вами в ближайшее время и ответит на все ваши вопросы

Согласие на обработку персональных данных