Открыть меню

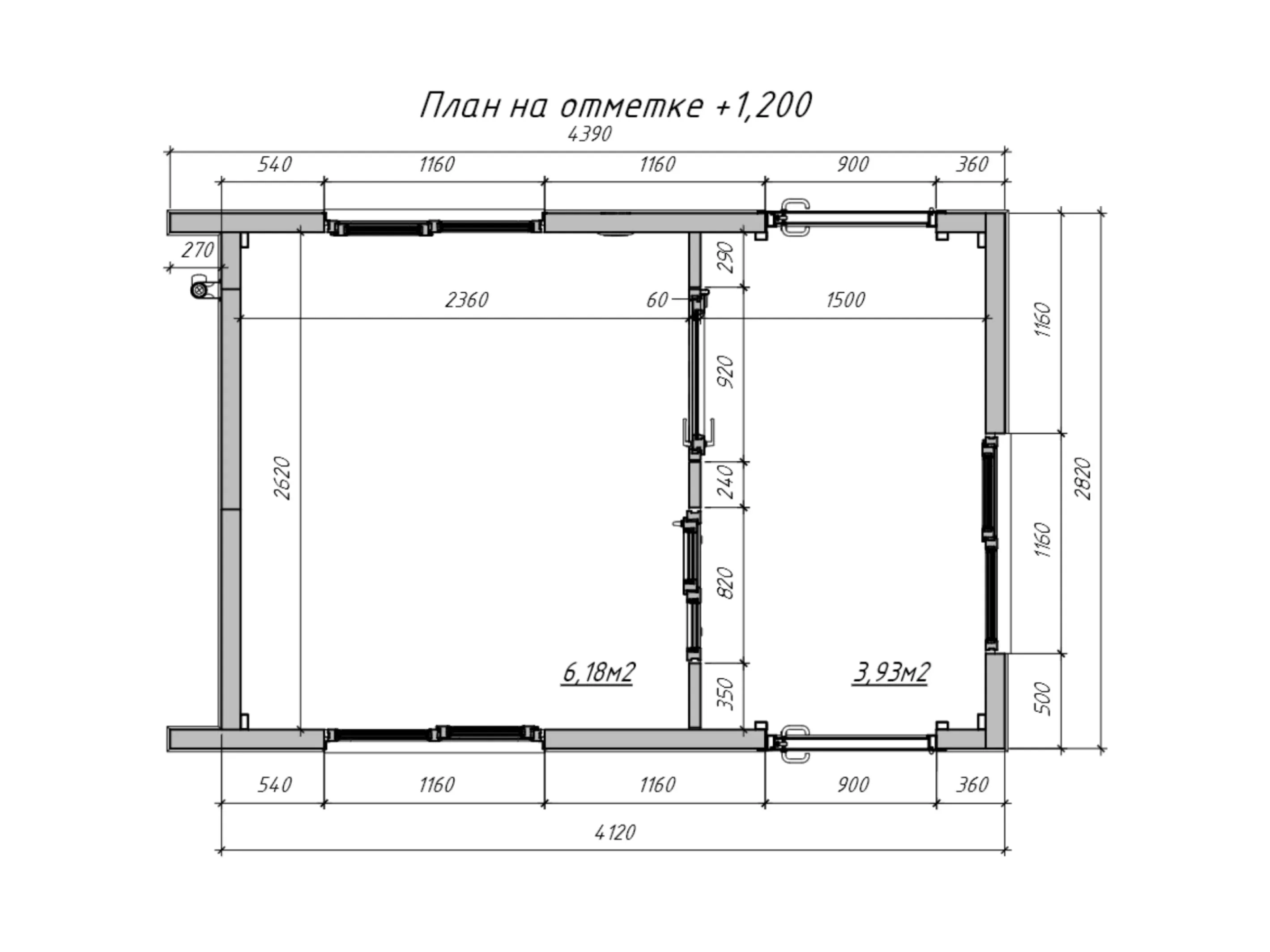
КПП 4х2,5 метра

Предназначено для обустройства быта сотрудников охраны (контрольно-пропускной пункт)

КПП

Характеристики КПП

Длина кпп

4 метров

Ширина кпп

2,5 метра

Высота кпп

2,8 метра

Толщина панелей

100 мм

Тип наполнителя

Пенополистирол

Описание

КПП-здание 4×2,5

Контрольно-пропускной пункт – это быстровозводимое модульное здание, рассчитанное для организации комфортных условий работы сотрудников охраны. Благодаря продуманной конструкции и прочным материалам обеспечивает надежность и удобство эксплуатации.

Основные характеристики здания сборно-разборного типа:

  • Каркас – жесткий сварной из профилей разного сечения с антикоррозийной защитой.
  • Стены и перегородки – металлические трехслойные сэндвич-панели с утеплением пенополистиролом 100 мм для наружных стен и 60 мм для внутренних перегородок.
  • Кровля – односкатная, сэндвич-панели толщиной 100 мм.
  • Пол – с базальтовым утеплителем, ЦСП 16 мм и линолеумом STATUS Leon 1 класса.
  • Остекление – ПВХ блок, мультистекло 32 мм, профиль Brusbox 60-3.
  • Двери – одностворчатые ПВХ и металлическая глухая утепленная дверь с доводчиками и ключами-барашек.

Быстровозводимые здания: купить в компании Модульные технологии

Закажите эту модель у нас, чтобы создать безопасное и комфортное рабочее место для сотрудников охраны с полным оснащением для электрики и вентиляции.

Понравился проект?

Заполните форму и наш менеджер свяжется с вами в ближайшее время и ответит на все ваши вопросы

Согласие на обработку персональных данных