Открыть меню

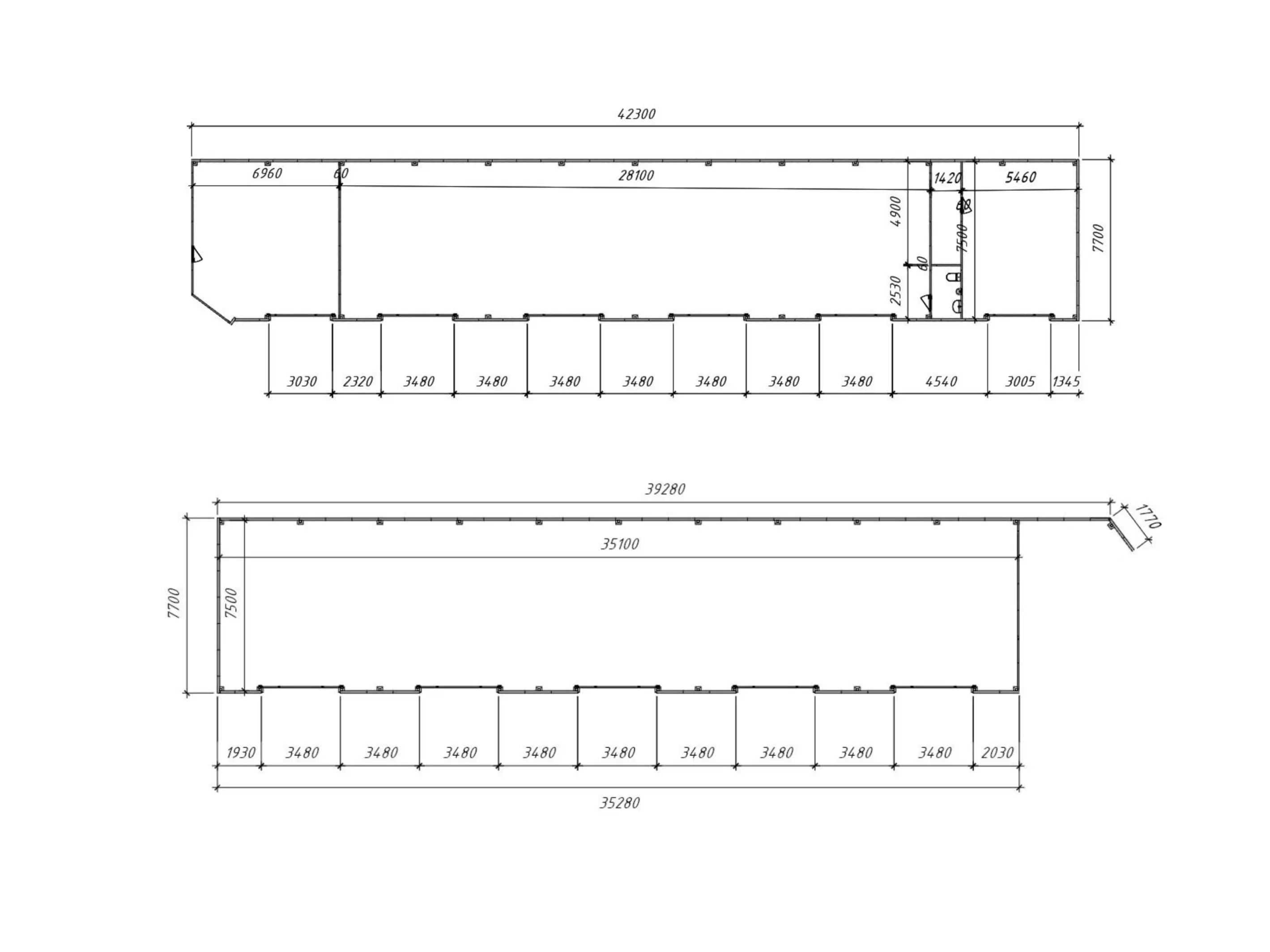
Гараж 81,6 на 7,7 метра

Предназначен для хранения и обслуживания автомобилей, спецтехники и оборудования.

Гараж

Характеристики гаража

Длина гаража

72 метра

Ширина гаража

7,7 метров

Высота гаража

3,8 метра

Толщина панелей

100 мм

Тип наполнителя

Минеральная вата

Описание

Гараж из панелей под ключ 81,6х7,7

Мобильный гараж – это современное и универсальное решение для хранения автомобиля, оборудования или инструментов. Он быстро собирается, а также отличается высоким качеством материалов.

Особенности гаража модульного:

  • Надежная конструкция. Каркас выполнен из жестких сварных профилей разного сечения и защищен антикоррозионной грунтовкой и эмалью. Наружные стены из сэндвич-панелей с минераловатным утеплителем обеспечивают защиту от огня и погодных условий.
  • Кровля, двери и окна. Односкатная крыша из сэндвич-панелей с минераловатным утеплителем надежно защищает от осадков. Установлена одностворчатая ПВХ-дверь с алюминиевым порогом. Остекление выполнено из профиля Brusbox.
  • Коммуникации и отделка. Водосточная система ПВХ, внутренняя разводка холодного и горячего водоснабжения, водоотведения и улучшенная электропроводка с автоматами.

Гараж из сэндвич-панелей: купить в компании Модульные технологии

В нашем каталоге большой выбор гаражей под ключ, поэтому вы точно найдете то, что вам нужно!

Понравился проект?

Заполните форму и наш менеджер свяжется с вами в ближайшее время и ответит на все ваши вопросы

Согласие на обработку персональных данных